V A N E S S A  R O U L O N

R É V É L A T R I C E   D ' I N T É R I E U R S

D E S I G N   D ' E S P A C E   &   D É C O R A T I O N

À PROPOS .
  • PRESTATIONS .
  • RÉALISATIONS .
  • CONTACT .

LE BOOK MISSION RÉNO

 

P R O J E T

A Q U A M A R I N A

 

Agencement et aménagement d'une pièce de vie

Tournefeuille, Haute-Garonne

 

- chantier livré -

▼

LE BOOK MISSION RÉNO

 

P R O J E T

A Q U A M A R I N A

 

Agencement et aménagement d'une pièce de vie

Tournefeuille, Haute-Garonne

 

- chantier livré -

▼

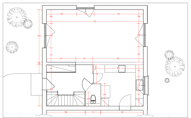
plan de l'existant

plan projeté

plan technique

coupe d'aménagement sur-mesure

perspective du projet

plans d'étude //

perspectives 3D //

perspectives 3D //

perspectives 3D //

perspectives 3D //

perspectives 3D //

planche d'inspiration

 

Suivez-moi sur

FACEBOOK   |   INSTAGRAM   |   PINTEREST

 

 

VANESSA ROULON - Révélatrice d'intérieurs

DESIGN D'ESPACE ET DÉCORATION

Tél:  +33 (0)6 09 40 59 80

PLAISANCE DU TOUCH, TOULOUSE, HAUTE-GARONNE, FRANCE

SIRET: 82514505500034 

Déplacement gratuit dans un rayon de 25km

autour de Plaisance du Touch (31830).

Des frais kilométriques seront facturés à hauteur de 0,50€ par km supplémentaire.

 Mentions légales

Tous droits réservés - 2024-2025 - Vanessa Roulon